I forlængelse af virtuelt borgermøde den 17. december skal kommunens Teknik og Miljø Udvalg den 4. januar behandle dispensationsansøgning for byggehøjden langs Bybuen. Skovlunde Lokalråd har gjort indsigelse til ansøgningen.
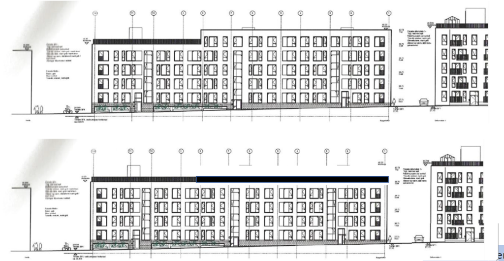
Begrundelsen for dispensationen er, at terrænet langs Bybuen stiger med ca. 2 meter mod Boulevarden, samtidigt med at den kommende bygning i den lave ende skal møde Netto-bygningen på 4 etager og i den høje ende skal møde den kommende bygning langs Boulevarden på 6 etager, hvoraf den øverste etage er tagterrasse.
Arkitekterne fremhæver, at forskellene bindes bedst sammen, hvis bygningen langs Bybuen øges med en etage på den øverste del, mens den underjordiske parkering gradvist kommer til syne mod Nettobygningen, idet fremtoningen gøres transparent ved at åbne facaden og fylde ud med grønne espalier eller lignende.
Forslaget blev præsenteret ved virtuelt borgermøde den 17. december. Præsentationen kan ses her.
Skovlunde Lokalråd vurderer, at dispensationen for den ekstra etage ikke skal gives og har derfor givet indsigelse ad 2 gange:
- Den 23. december efter borgermødet (se indsigelse)
- Den 3. januar efter bekendtgørelse af dagsorden (se notat)
Lokalrådet ønsker en så god bymidte som muligt, både i forhold til funktion og udseende. Selvom Lokalrådet kan se intentionerne med en gradvis overgang i byggehøjden, menes fordelene ikke at være så væsentlige, at de kan opveje ulemperne ved en delvis ekstra etage.
Dette skal særligt ses i lyset af en udbredt generel modstand mod yderligere byggehøjde blandt borgerne i Skovlunde, hvilket medførte en reduktion af højden for netop den pågældende bygning ved vedtagelsen af den gældende lokalplan. En dispensation vil dermed tilsidesætte de indsigelser, der på det tidspunkt blev indrømmet.
Til vurdering af forslaget har lokalrådet klippe/klistret i tegningerne:

Lokalrådets vurdering er, at en bevarelse af lokalplanens byggehøjde ikke vil fremstå uharmonisk på en måde, der retfærdiggør dispensation.

bemærk venligst det lille svindelnummer med “skurene” på taget – de 4 meter høje betonklodser: dem “glemte” man lige at forhøje sammen med den ekstra etage- men hvad pokker, de er slet ikke med på de oprindelige tegninger – heller ikke på Ballerup Boulevard; men de er selvfølgelig også nogle yderst smukke “tårne”, som vi alle kan være glade for at betragte….Jeg synes mere det ligner en gang plat/bedrag/svindel/humbug/narresut/…..
Jeg er – ligesom langt hovedparten af Skovlunde borgerene – helt enig i jeres indsigelser.
Kæmp videre.
Teknik- og Miljøudvalget er ved at lukke bycentret inde i sig selv, istedet for at bevare en åben by.